Edificios de vivienda unifamiliar
Award in Gold
Reforma de Chesa Gabriel en Samedan
Corinna Menn
web Corinna Menn: http://www.corinnamenn.ch/index.php
Casa F
FINCKH ARCHITEKTEN
Photos by: Mark Seelen Photography
Awards
Hofhaus Elsinger
Architekturbüro Bogenfeld
web bogenfeld ARCHITEKTURE: http://www.bogenfeld.at/
Reforma de Casa Z
Architekturbüro Bogenfeld
© Simon Bauer
web bogenfeld ARCHITEKTURE: http://www.bogenfeld.at/
Vivienda unifamiliar Oberlunkhofen
idA buehrer wuest architekten
web idA: http://id-a.ch/
Vivienda unifamiliar en Hofgut Hafnerleiten
FORMAT ELF ARCHITEKTEN
Photography: Lothar Reichel
web FORMAT ELF ARCHITEKTEN: http://www.formatelf.de/
Grillparzergasse
hmA Hann Mitterecker Architekten
web hmA: http://www.hma.at/
Construcción de remplazo EFH Husistein
Husistein & Partner AG
Fotografie: Philipp Husistein
Fotografie: Walter Mair, Basel
Fotografie: Walter Mair, Basel
Fotografie: Walter Mair, Basel
Fotografie: Walter Mair, Basel
Fotografie: Walter Mair, Basel
Fotografie: Walter Mair, Basel
Fotografie: Walter Mair, Basel
Fotografie: Walter Mair, Basel
Fotografie: Walter Mair, Basel
Fotografie: Walter Mair, Basel
web Husistein & Partner AG: http://www.husistein.com/
Estudio en Reckingen
ROMAN HUTTER ARCHITEKTUR GMBH & CAROLA WIESE
web RHA: http://www.romanhutter.ch/
web Niederöwehrmeier+Wiese:
Casa en Lü
Carole Iselin Architektur
web CAROLE ISELIN: http://www.iselinarch.ch/iselin/o.html
Edificios de vivienda Unifamiliar
Awards
Casa en der March
kit | architects
web kit: http://kitarchitects.com/
Casa Iseli
François Meyer Architecture
web meyer françois architecture: http://www.meyerar.ch/
Casa Mabillard
François Meyer Architecture
web meyer françois architecture: http://www.meyerar.ch/
Casa Confignon
LOCALARCHITECTURE
web LOCALARCHITECTURE: http://www.localarchitecture.ch/
Conversión de capilla Berna
Morscher Architekten
web Morscher: http://www.morscher.ch/
Ein Gartenpavillon in Zürich
Oliv Brunner Volk Architekten
web Oliv Brunner Volk Architekten:
http://www.olivbrunnervolk.ch/intro.html
Casa Pliscia 13
Pedevilla Architekten
web pedevilla: http://www.pedevilla.info/
Edificios de vivienda multifamiliar
Award in Gold
Bruggerberg
Ken Architekten
web ken: http://www.ken-architekten.ch/
Alterswohnungen Sonnenhof
Michael Meier & Marius Hug Architekten
web Michael Meier & Marius Hug Architekten:
http://www.meierhug.ch/
Awards
Edificio Segantinistrasse Zurich
Baumberger & Stegmeier AG
web Baumberger & Stegmeier AG: http://www.baumbergerstegmeier.ch/
Wohnüberbauung Goldwand
Burkard Meyer Architekten
web BURKARD MEYER: http://www.burkardmeyer.ch/
Edificio residencial y comercial Thalbachgasse 4
Dorner\Matt Architekten
web DORNER\MATT: http://www.dorner-matt.at/
t4
Architekturwerkstatt Dworzak
web architekturwerkstatt dworzak: http://www.hugodworzak.at/
Landenberg
Peter Kunz Architektur
web PETER KUNZ ARCHITEKTUR:
http://www.kunz-architektur.ch/de/home.asp
Wohnbau Ragnitzstraße
LOVE architecture and urbanism
web Love: http://www.love-home.com/
5 Casas en Barbengo
Studio Meyer e Piattini
web studio meyer e piattini: http://meyerpiattini.ch/
Wohnsiedlung Dollikerstrasse
Neff Neumann Architekten
web n/n neffneumann: http://www.neffneumann.ch/
Casa Silberahorn
Neff Neumann Architekten
web n/n neffneumann: http://www.neffneumann.ch/
Edificio Beckmanngasse
NERMA LINSBERGER
web LUCA SELVA ARCHITEKTEN: http://www.selva-arch.ch/
City Gate Haus D
Luca Selva Architekten
web LUCA SELVA ARCHITEKTEN: http://www.selva-arch.ch/
Monolith Meilen
THINK ARCHITECTURE
web THINK ARCHITECTURE: http://www.thinkarchitecture.ch/index.php
Viviendas en el antiguo muro de Berlín
Atelier Zafari
web ATELIER ZAFARI.ARCHITECTURE: http://atelier-zafari.com/
ch39
zanderroth architekten
web zanderrotharchitekten: http://www.zanderroth.de/de/intro/105
Edificios de oficinas y administrativos
Awards
Banco Raiffeisen Untersiggenthal
Liechti Count Zumsteg
web LiechtiGrafZumsteg: http://www.lgz.ch/aktuell/
Edificio de oficinas IVB
peterlorenzateliers
web peterlorenzateliers: http://www.peterlorenz.at/
Edificio de viviendas y oficinas Laur-Park
pool Architekten
web pool: http://www.poolarch.ch/
Edificios comerciales e industriales
Awards in Gold
Extensión servio de mantenimiento ferroviario Herdern
EM2N Architekten
web EM2N: http://www.em2n.ch/
Awards
Bauhaus Trade Center Bremen
DFZ Architekten
web huber staudt architekten bda:
http://www.huberstaudtarchitekten.de/
Ganztagsbetreuung Realschule Zusmarshausen
kaestle&ocker
web k&o: http://www.kaestleocker.de/
Comunidad de San Bonifacio, Herbrechtingen
kaestle&ocker
web k&o: http://www.kaestleocker.de/
Escuela Steiner en Bois-Genoud
LOCALARCHITECTURE
web LOCALARCHITECTURE: http://www.localarchitecture.ch/index.php
Nueva Kirchgemeindehaus Würenlos
Menzi Bürgler Architekten
web MENZI BÜRGLER: http://www.menzibuergler.ch/
Estadio de Fútbol Thun
pool Architekten
web pool: http://www.poolarch.ch/
Campus FC Basel 1893
Luca Selva Architekten
web LUCA SELVA ARCHITEKTEN: http://www.selva-arch.ch/
Nueva Blue Kita Monheim
v-architekten
web v-architekten: http://www.v-architekten.com/
Otros edificios
Award in Gold
Park-Garage
Bögl Gierer Architekten
web BÖGL GIERER ARCHITEKTEN:
http://www.boegl-gierer.de/index.html
Awards
Cuadros en el paisaje: Proyecto de conservación de la naturaleza Waldnaabaue
Brückner & Brückner Architekten
web BRÜCKNER & BRÜKNER ARCHITEKTEN:
http://www.architektenbrueckner.de/
musikverein zwettl
franz zt gmbh
web franz: http://franz-architekten.at/news.html
Nuevo Corral Wildenstein
Kury Stähelin Architekten
web KURY STÄHELIN Architectes: http://www.kurystaehelin.ch/#news
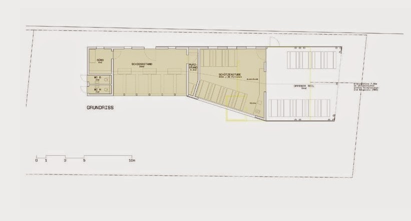
Schützenhaus Schönenbuch
Stephan Eicher Architekten
web STEPHAN EICHER Architekten:
http://www.searchitekten.ch/searchitekten/Stephan_Eicher.html
Edificio en el bosque: fauna y flora Pabellón Zoo Bern
Morscher Architekten
web Morscher: http://www.morscher.ch/
Umbau Stiftsplatz des Klosters Neustift
Markus Scherer
web MARKUS SCHERER ARCHITEKT: http://www.architektscherer.it/
Interiores
Award in Gold
BOX117
Marc Benjamin Drewes und Thomas Schneider
web marc benjamin drewes ARCHITEKTUREN: http://marcdrewes.com/
Awards
Extensión Restaurante Hotel Shanghai
DRATZ&DRATZ ARCHITEKTEN
web DRATZ&DRATZ ARCHITEKTEN:
http://www.dratz-architekten.de/aktuell.html
Gams ei
Buero Wagner
web BUERO WAGNER: http://www.buerowagner.eu/
+info:
http://bestarchitects.de/de/home.html
Carole Iselin Architektur
web CAROLE ISELIN: http://www.iselinarch.ch/iselin/o.html
Edificios de vivienda Unifamiliar
Awards
Casa en der March
kit | architects
Photography: Dominique Marc Wehrli
Casa Iseli
François Meyer Architecture
web meyer françois architecture: http://www.meyerar.ch/
Casa Mabillard
François Meyer Architecture
web meyer françois architecture: http://www.meyerar.ch/
Casa Confignon
LOCALARCHITECTURE
web LOCALARCHITECTURE: http://www.localarchitecture.ch/
Conversión de capilla Berna
Morscher Architekten
Fotos: Dominique Uldry
web Morscher: http://www.morscher.ch/
Ein Gartenpavillon in Zürich
Oliv Brunner Volk Architekten
Foto: Eliane Rutishauser
Foto: Christian Brunner
Foto: Christian Brunner
Foto: Christian Brunner
Foto: Christian Brunner
Foto: Christian Brunner
Foto: Christian Brunner
Foto: Eliane Rutishauser
Foto: Eliane Rutishauser
Foto: Christian Brunner
Foto: Eliane Rutishauser
Foto: Eliane Rutishauser
web Oliv Brunner Volk Architekten:
http://www.olivbrunnervolk.ch/intro.html
Casa Pliscia 13
Pedevilla Architekten
Fotos: Gustav Willeit
web pedevilla: http://www.pedevilla.info/
Edificios de vivienda multifamiliar
Award in Gold
Bruggerberg
Ken Architekten
web ken: http://www.ken-architekten.ch/
Alterswohnungen Sonnenhof
Michael Meier & Marius Hug Architekten
web Michael Meier & Marius Hug Architekten:
http://www.meierhug.ch/
Awards
Edificio Segantinistrasse Zurich
Baumberger & Stegmeier AG
Photography: Roland Bernath
web Baumberger & Stegmeier AG: http://www.baumbergerstegmeier.ch/
Wohnüberbauung Goldwand
Burkard Meyer Architekten
web BURKARD MEYER: http://www.burkardmeyer.ch/
Edificio residencial y comercial Thalbachgasse 4
Dorner\Matt Architekten
web DORNER\MATT: http://www.dorner-matt.at/
t4
Architekturwerkstatt Dworzak
© Günter König
© Günter König
© Günter König
© Günter König
© Günter König
© Günter König
© Günter König
© Christian Grass
© Christian Grass
© Christian Grass
© Christian Grass
web architekturwerkstatt dworzak: http://www.hugodworzak.at/
Landenberg
Peter Kunz Architektur
Fotos © Claudia Luperto
web PETER KUNZ ARCHITEKTUR:
http://www.kunz-architektur.ch/de/home.asp
Wohnbau Ragnitzstraße
LOVE architecture and urbanism
web Love: http://www.love-home.com/
5 Casas en Barbengo
Studio Meyer e Piattini
web studio meyer e piattini: http://meyerpiattini.ch/
Wohnsiedlung Dollikerstrasse
Neff Neumann Architekten
web n/n neffneumann: http://www.neffneumann.ch/
Casa Silberahorn
Neff Neumann Architekten
Edificio Beckmanngasse
NERMA LINSBERGER
web NERMA LINSBERGER: http://www.nermalinsberger.com/
Edificio Pfarrmesner
Pedevilla Architekten
web pedevilla: http://www.pedevilla.info/
Areal Frieden
pool Architekten
web pool: http://www.poolarch.ch/
Edificio Rovéréaz
LOCALARCHITECTURE
web LOCALARCHITECTURE: http://www.localarchitecture.ch/
Generationenhaus
Luca Selva Architekten
Pedevilla Architekten
Fotos: Gustav Willeit
web pedevilla: http://www.pedevilla.info/
Areal Frieden
pool Architekten
web pool: http://www.poolarch.ch/
Edificio Rovéréaz
LOCALARCHITECTURE
Photography: Matthieu Gafsou
web LOCALARCHITECTURE: http://www.localarchitecture.ch/
Generationenhaus
Luca Selva Architekten
web LUCA SELVA ARCHITEKTEN: http://www.selva-arch.ch/
City Gate Haus D
Luca Selva Architekten
web LUCA SELVA ARCHITEKTEN: http://www.selva-arch.ch/
Monolith Meilen
THINK ARCHITECTURE
web THINK ARCHITECTURE: http://www.thinkarchitecture.ch/index.php
Viviendas en el antiguo muro de Berlín
Atelier Zafari
web ATELIER ZAFARI.ARCHITECTURE: http://atelier-zafari.com/
ch39
zanderroth architekten
Photography: Simon Menges
Edificios de oficinas y administrativos
Awards
Banco Raiffeisen Untersiggenthal
Liechti Count Zumsteg
web LiechtiGrafZumsteg: http://www.lgz.ch/aktuell/
Edificio de oficinas IVB
peterlorenzateliers
web peterlorenzateliers: http://www.peterlorenz.at/
Edificio de viviendas y oficinas Laur-Park
pool Architekten
Fotos: Georg Aerni, Andrea Helbling
Edificios comerciales e industriales
Awards in Gold
Extensión servio de mantenimiento ferroviario Herdern
EM2N Architekten
web EM2N: http://www.em2n.ch/
Awards
Bauhaus Trade Center Bremen
DFZ Architekten
web DFZ ARCHITEKTEN: http://dfz-architekten.de/
Estudio Baviera
Muck Petzet und Partner Architekten – Muck Petzet, Andreas Ferstl
web Muck Petzet Architekten: http://www.mp-a.de/
Edificio de producción y oficinas para empresa de textiles
tillicharchitektur
web tillich archi tektur: http://www.tillicharchitektur.de/
Showroom Ventanas Jörg
wps architekten
web wps architekten: http://www.wps-architekten.de/
Edificios públicos
Awards in Gold
Escuela Primaria Laufen
Baumberger & Stegmeier AG
web Baumberger & Stegmeier AG:
http://www.baumbergerstegmeier.ch/
Museo Silesian Katowice
Riegler Riewe Architekten
web RieglerRiewe: http://www.rieglerriewe.co.at/
Awards
Festhalle Neckar Avenue en Neckartailfingen
Ackermann + Raff · Stuttgart
web ackermann + raff: http://www.ackermann-raff.de/
Guardería en Alzey
AV1 Architekten GmbH
web AV1 Architekten: http://www.av1architekten.de/
Guardería Josefine Kramer
bächle meid architekten
web bächle meid architekten:
http://www.meid-baechle-architekten.de/
Schulhaus Dorf
Baumberger & Stegmeier AG
web Baumberger & Stegmeier AG:
http://www.baumbergerstegmeier.ch/
Escuela de Orientación, Vouvry
Berrel Berrel Kräutler Architekten
web BERREL BERREL KRÄUTLER AG:
http://www.bbk-architekten.ch/home.html
Palacio de deportes de San Martín
Dietger Wissounig Architekten
web DIETGER WISSOUNIG ARCHITEKTEN: http://www.wissounig.com/
Physikalisch-Technische Bundesanstalt (PTB) Berlin
huber staudt architekten
Muck Petzet und Partner Architekten – Muck Petzet, Andreas Ferstl
web Muck Petzet Architekten: http://www.mp-a.de/
web AFA: http://www.a-f-a.de/
Edificio de producción y oficinas para empresa de textiles
tillicharchitektur
fotos michael compensis
Showroom Ventanas Jörg
wps architekten
web wps architekten: http://www.wps-architekten.de/
Edificios públicos
Awards in Gold
Escuela Primaria Laufen
Baumberger & Stegmeier AG
web Baumberger & Stegmeier AG:
http://www.baumbergerstegmeier.ch/
Museo Silesian Katowice
Riegler Riewe Architekten
Photo: Paolo Rosselli
Photo: Wojciech Kryński
Photo: Wojciech Kryński
Photo: Paolo Rosselli
Photo: Paolo Rosselli
Photo: Wojciech Kryński
Photo: Paolo Rosselli
web RieglerRiewe: http://www.rieglerriewe.co.at/
Awards
Festhalle Neckar Avenue en Neckartailfingen
Ackermann + Raff · Stuttgart
web ackermann + raff: http://www.ackermann-raff.de/
Guardería en Alzey
AV1 Architekten GmbH
web AV1 Architekten: http://www.av1architekten.de/
Guardería Josefine Kramer
bächle meid architekten
Fotos: Roland Halbe
web bächle meid architekten:
http://www.meid-baechle-architekten.de/
Schulhaus Dorf
Baumberger & Stegmeier AG
Photography: Roland Bernath
web Baumberger & Stegmeier AG:
http://www.baumbergerstegmeier.ch/
Escuela de Orientación, Vouvry
Berrel Berrel Kräutler Architekten
web BERREL BERREL KRÄUTLER AG:
http://www.bbk-architekten.ch/home.html
Palacio de deportes de San Martín
Dietger Wissounig Architekten
web DIETGER WISSOUNIG ARCHITEKTEN: http://www.wissounig.com/
Physikalisch-Technische Bundesanstalt (PTB) Berlin
huber staudt architekten
web huber staudt architekten bda:
http://www.huberstaudtarchitekten.de/
Ganztagsbetreuung Realschule Zusmarshausen
kaestle&ocker
Photography © Brigida Gonzalez
web k&o: http://www.kaestleocker.de/
Comunidad de San Bonifacio, Herbrechtingen
kaestle&ocker
web k&o: http://www.kaestleocker.de/
Escuela Steiner en Bois-Genoud
LOCALARCHITECTURE
web LOCALARCHITECTURE: http://www.localarchitecture.ch/index.php
Nueva Kirchgemeindehaus Würenlos
Menzi Bürgler Architekten
Fotos: Rasmus Norlander, Zürich
web MENZI BÜRGLER: http://www.menzibuergler.ch/
Estadio de Fútbol Thun
pool Architekten
web pool: http://www.poolarch.ch/
Campus FC Basel 1893
Luca Selva Architekten
web LUCA SELVA ARCHITEKTEN: http://www.selva-arch.ch/
Nueva Blue Kita Monheim
v-architekten
Photography: Constantin Meyer
web v-architekten: http://www.v-architekten.com/
Otros edificios
Award in Gold
Park-Garage
Bögl Gierer Architekten
Photography © Michael Heinrich
web BÖGL GIERER ARCHITEKTEN:
http://www.boegl-gierer.de/index.html
Awards
Cuadros en el paisaje: Proyecto de conservación de la naturaleza Waldnaabaue
Brückner & Brückner Architekten
Photography © Peter Manev, Selb
http://www.architektenbrueckner.de/
musikverein zwettl
franz zt gmbh
web franz: http://franz-architekten.at/news.html
Nuevo Corral Wildenstein
Kury Stähelin Architekten
Photography: Thomas Jantscher
web KURY STÄHELIN Architectes: http://www.kurystaehelin.ch/#news
Schützenhaus Schönenbuch
Stephan Eicher Architekten
web STEPHAN EICHER Architekten:
http://www.searchitekten.ch/searchitekten/Stephan_Eicher.html
Edificio en el bosque: fauna y flora Pabellón Zoo Bern
Morscher Architekten
Photography: Dominique Uldry
web Morscher: http://www.morscher.ch/
Umbau Stiftsplatz des Klosters Neustift
Markus Scherer
Photography: Bruno Klomfar
Interiores
Award in Gold
BOX117
Marc Benjamin Drewes und Thomas Schneider
web marc benjamin drewes ARCHITEKTUREN: http://marcdrewes.com/
Awards
Extensión Restaurante Hotel Shanghai
DRATZ&DRATZ ARCHITEKTEN
Fotos: Tomas Riehle
web DRATZ&DRATZ ARCHITEKTEN:
http://www.dratz-architekten.de/aktuell.html
Gams ei
Buero Wagner
Photography: S&S Schels, Jann Averwerser
web BUERO WAGNER: http://www.buerowagner.eu/
+info:
http://bestarchitects.de/de/home.html




















































.jpg)















































































































































































































































































































































































































































































































































.jpg)
.jpg)
.jpg)
.jpg)
.jpg)
.jpg)

.jpg)





















































































































































































































































































No hay comentarios:
Publicar un comentario
Para poder comentar es necesario que cuentes con una cuenta Google, ya que esto implica que de antemano has aceptado la gestión de tus datos personales por parte de Google LLC, propietario de Blogger. En este caso, el envío del comentario es una aceptación explícita e inequívoca de la gestión tanto de tus datos como del comentario mismo para uso de AIB Architecture. La finalidad de la recogida de los datos, además de permitir mostrar tu comentario, es para poder responderte por este medio. Consulta más información en Aviso Legal y Política de Privacidad.