Single Family Homes
Gold Award
Heidenhaus in Münster
Roman Hutter Architektur
web RHA: http://www.romanhutter.ch/
Tom’s Hütte
Raumhochrosen
web raumhochrosen: http://www.heikeschlauch.com/de
Award
Wohnhaus in Ottweiler
Bayer & Strobel
Fotos: Peter Strobel
web BAYER & STROBEL ARCHITEKTEN: http://www.bayerundstrobel.de/
Strukturen im Hang - Villa P
bergmeisterwolf architekten
web bergmeisterwolf: http://www.bergmeisterwolf.it/start.php
Haus cj_5
Caramel architekten
web Caramel: http://www.caramel.at/
VRAM - Villa R. à Marly
AC Architectes, Alexandre Clerc architectes SIA
web ACARCHITECTES: http://www.acarchitectes.ch/
Compact Karst House
dekleva gregoric architects
Photography: Janez Marolt
web dekleva gregoric architects: http://dekleva-gregoric.com/
Haus B. in München-Aubing
FORMAT ELF ARCHITEKTEN
web FORMAT ELF ARCHITEKTEN: http://www.formatelf.de/
Hof Bärgiswil
Andreas Fuhrimann Gabrielle Hächler / Carlo Fumarola / Gilbert Isermann
web afgh: http://www.afgh.ch/index.html
Villa Ensemble bei Zürich
Andreas Fuhrimann Gabrielle Hächler / Carlo Fumarola / Gilbert Isermann
web afgh: http://www.afgh.ch/index.html
Haus für Julia und Björn
Innauer Matt Architekten
Photos: Adolf Bereuter
Haus Feurstein
Innauer Matt Architekten
Photos: Adolf Bereuter
web ARCHITEKTEN INNAUER MATT: http://www.innauer-matt.com/
Casa da Pign
Peter Kunz Architektur mit Atelier Strut
Fuente: arc award
Photography: Claudia Luperto, Winterthur
web atelier strut: http://www.strut.ch/de/aktuell.aspTrübel - Neubau Wohnhaus, Rebhang, Dielsdorf
L3P Architekten ETH FH SIA AG
web L3P: http://www.l3p.ch/
EFH Maier
LP architektur ZT GmbH
Fotos: Volker Wortmeyer
http://www.lparchitektur.at/de/home.html
Silverhouse
marchwell Valentino Marchisella Architekten AG ETH SIA
web marchwell: http://www.marchwell.com/de/#!/home
Pferdepraxis Griss
Marte.Marte Architekten ZT GmbH
web marte.marte architects: http://www.marte-marte.com/
Van Dick Apartment, Sanierung und Erweiterung
MET Architects GmbH SIA
Fuente: competitionline
Photography: © Geraldine Bruneel
MET architects
Haus am Mühlbach
Pedevilla Architects
Fotos: Gustav Willeit
EFH Lohn-Ammannsegg
phalt Architekten AG
web phalt: http://www.phalt.ch/
Wohnhaus in Castasegna
Ruinelli Associati SA Architetti SIA
web RUINELLI ASSOCIATI SA ARCHITETTI SIA:
http://www.ruinelli-associati.ch/it/
Bigroof
sas specific architectural solutions
web sas specific architectural solutions:
http://www.sas-architecture.com/
Can Lluís i n’Eulàlia
TEd’A arquitectes
web TEd´A arquitectes: http://www.tedaarquitectes.com/
Los Limoneros
gus wüstemann architects
web gus wüstemann architects: http://www.guswustemann.com/
Multi-Family Homes
Gold Award
85 dwellings in Lyon
Éric Lapierre Architecture
web Éric Lapierre: http://www.ericlapierre.com/
Wohnbebauung Sillblock Innsbruck
Schenker Salvi Weber Architekten ZT GmbH
web SCHENKER SALVI WEBER ARCHITEKTEN:
http://www.sswarchitekten.com/
Award
Swisswoodhouse
Bauart Architects and Planers Ltd
web bauart: http://bauart.ch/
Wohnmäander Giesshübel
burkhalter sumi archiekten
web burkhalter sumi archiekten:
http://www.burkhalter-sumi.ch/projects
Wohnprojekt Wien
einszueins architektur
web einszueins architektur: http://www.einszueins.at/
Social Housing in Vallecas
Guillermo Vazquez Consuegra
Fotografía: Duccio Malagamba
Mehrfamilienhaus in Saint-Sulpice
Fruehauf Henry & Viladoms
web Fruehauf Henry & Viladoms: http://www.fhvarchitectes.ch/
Wohnen am Schaffhauserrheinweg, Basel
jessenvollenweider
Photo Philip Heckhausen
Umbau Mehrfamilienhaus an der Eisengasse, Zürich
Käferstein & Meister Architekten
Photos: Martina Meier
web KÄFERSTEIN & MEISTER ARCHITEKTEN:
http://kaefersteinmeister.ch/km/
80 dwellings in Nanterre
Éric Lapierre Architecture
web Éric Lapierre: http://www.ericlapierre.com/
Kalkbreite
Müller Sigrist Architekten AG
Aufstockung Wohnhaus Sécheron
Raphaël Nussbaumer Architectes
web Raphaël Nussbaumer Architectes: http://www.rnussbaumer.ch/
Dreifamilienhaus im Dörfli
pool Architekten
web pool Architekten: http://www.poolarch.ch/
Sanierung Wohnhäuser Central Park, Luzern
Schärli Architekten AG
Photo Foto-x.ch
http://www.schaerli-ag.ch/de/index.php
Wohn- und Geschäftshaus Aarhof
Schneider & Schneider Architekten ETH BSA SIA AG
web SCHNEIDER & SCHNEIDER Architekten ETH BSA SIA AG:
http://www.schneiderschneider.ch/
Wohnüberbauung Aarenau
Schneider & Schneider Architekten ETH BSA SIA AG · Aarau · CH
web SCHNEIDER & SCHNEIDER Architekten ETH BSA SIA AG:
http://www.schneiderschneider.ch/
Hafenatelier Kap Zwenkau
Schulz & Schulz
Fuente: ECOLA
Photo Stefan Müller
web Schulz und Schulz: http://schulz-und-schulz.com/en/
Wohnhaus am Gellertpark
Luca Selva Architekten
web LUCA SELVA ARCHITEKTEN: http://www.selva-arch.ch/
Glattpark Mitte
THINK ARCHITECTURE
web THINK ARCHITECTURE: http://www.thinkarchitecture.ch/index.php
Mehrfamilienhaus Im Amt, Gutenswil
weberbrunner architekten ag
web weberbrunner architekten ag: http://www.weberbrunner.ch/
cb19
zanderroth architekten gmbh
web zanderrothrchitekten: http://www.zanderroth.de/de/intro/343
Office/Administrative Buildings
Gold Award
Bürogebäude Wüst und Wüst, Küsnacht
giuliani.hönger ag dipl. architekten eth-bsa-sia
Photo: David Willén
Award
Science Park Kassel
Birk Heilmeyer und Frenzel Gesellschaft von Architekten mbH
web Birk Heilmeyer und Frenzel Architekten:
http://www.bhundf.de/de/kontakt
KSK Kompetenzcenter Süßen
dauner rommel schalk architekten
Photography: Brigida Gonzalez
web dauner rommel schalk architekten:
http://daunerrommelschalk.de/
Hilti Innovation Center, Schaan FL
giuliani.hönger ag dipl. architekten eth-bsa-sia
web giuliani.hönger: http://www.giulianihoenger.ch/
Verwaltungszentrum Oberer Graben
jessenvollenweider
Photographien: Hanspeter Schiess, Trogen
Strafjustizzentrum Muttenz
Kunz und Mösch Architekten ETH SIA BSA
Fotografie: Tom Bisig und Kunzunsmosch
web KUNZUNDMÖSCH: http://www.kunzundmoesch.ch/
Neubau Hauptsitz Südtiroler Volksbank
Christian Rübbert Architekt & ARGE INNOCAD/bergundtal
Photo Roland Halbe
web CHRISTIAN RÜBBERT ARCHITEKT:
http://www.christianruebbert.com/de/projekte.html
web BERGUNDTAL: http://www.bergundtal.it/
Commercial/Industrial Buildings
Award
Ateliergebäude Seidenweg
Althaus Architekten
web Althaus Architekten:
http://www.althaus-architekten.ch/pages/de/Home.html
RiemHotels
GOETZ CASTORPH ARCHITEKTEN UND STADTPLANER GMBH
Photo Michael Heinrich
web GOETZ CASTORPH ARCHITEKTEN UND STADTPLANER GMBH:
http://www.goetzcastorph.de/
Headquarter Sky-Frame
Peter Kunz Architektur mit Atelier Strut
Fotos © Claudia Luperto
web atelier strut: http://www.strut.ch/de/default.asp
Lokschuppen
Liebel/Architekten BDA
web L/A: http://www.liebelarchitekten.de/
Weingut Högl, Wachau
Elmar Ludescher Architekt + Philip Lutz ZT GmbH
Weingut Wachau, A, 2015 (mit Philip Lutz)
web Elmar Ludescher Architekt: http://www.elmar-ludescher.at/
web Philip Lutz Architektur: http://www.philiplutz.at/
Altstoffsammelzentrum Feldkirch
Marte.Marte Architekten ZT GmbH
Fuente: vorarlberger holzbau_kunst
web marte.marte architekten: http://www.marte-marte.com/
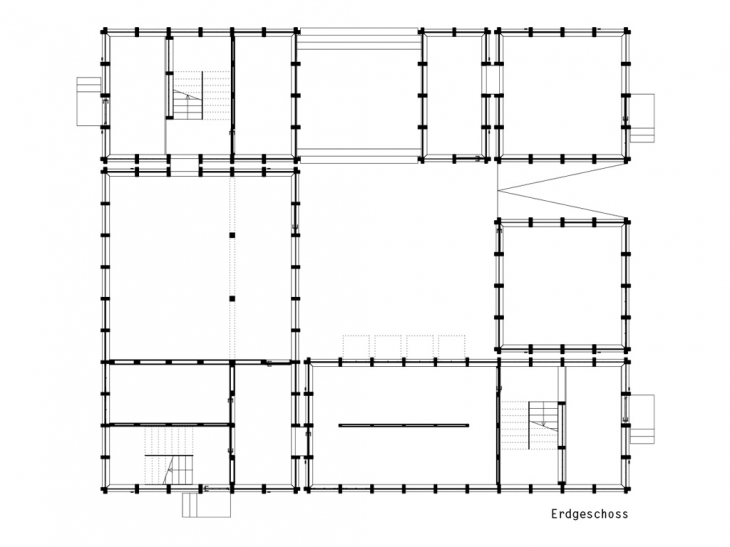
Neubau Longhin
Mierta & Kurt Lazzarini Architekten
Fuente: competitionline
Photo © Ralph Feiner
Photo © Ralph Feiner
Photo © Ralph Feiner
Photo © Ralph Feiner
© M. und K. Lazzarini
© M. und K. Lazzarini
© M. und K. Lazzarini
Photo © Ralph Feiner
Photo © Ralph Feiner
Photo © Ralph Feiner
Inspiration, © M. und K. Lazzarini
Photo © Ralph Feiner
© M. und K. Lazzarini
Untergeschoss, © M. und K. Lazzarini
Erdgeschoss, © M. und K. Lazzarini
1. Obergeschoss, © M. und K. Lazzarini
2.Obergeschoss, © M. und K. Lazzarini
3.Obergeschoss, © M. und K. Lazzarini
web Mierta & Kurt Lazzarini Architekten:
http://www.lazzarinis.com/
Werkhalle AWEL, Andelfingen
Rossetti + Wyss Architekten AG
web ROSSETTI + WYSS ARCHITEKTEN: http://www.rossetti-wyss.ch/
SILOS 13 - CEMENT DISTRIBUTION CENTER
VIB ARCHITECTURE
Photos extérieurs ©Stéphane Chalmeau, Photos intérieurs ©Daniel Moulinet, Photos chantier ©vib
web vib architecture: http://www.vibarchitecture.com/
Badmintonhalle Langnau
Jan Henrik Hansen, Rolf Iseli, Architekten ETH SIA
Photos : Roger Frei, Zürich
Infrastructure Buildings
Gold Award
Zielturm Rotsee
Andreas Fuhrimann Gabrielle Hächler /Carlo Fumarola / Gilbert Isermann
Fotos: Valentin Jeck
web afgh: http://www.afgh.ch/
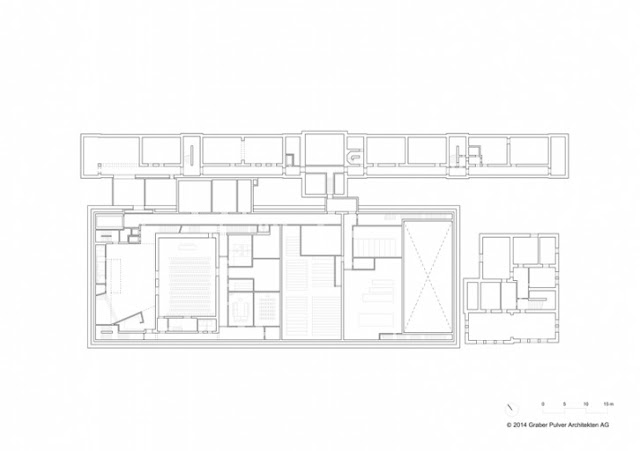
Energiezentrale Forsthaus, Bern
Graber Pulver Architekten AG
Fotografie: Georg Aerni, Zürich / Hannes Henz, Zürich / vistaplus.ch, Gasel
web GRAVER PULVER: http://graberpulver.ch/
Award
Parkhaus Nordost
agps architecture ltd.
photography: Brigida Gonzalez
web agps: http://www.agps.ch/
0615_uedo - Brandhaus Übungsdorf
Atelier M Architekten GmbH
Fuente: competitionline
Adresse, © Atelier M Architekten / Foto: Sabrina Scheja
Relief mit Durchblick, © Atelier M Architekten / Foto: Sabrina Scheja
Langsschnitt, © Atelier M Architekten
Anlieferung Hof, © Atelier M Architekten / Foto: Sabrina Scheja
Knitterwerk, © Atelier M Architekten / Foto: Sabrina Scheja
Knitterwerk Illustration, © Atelier M Architekten
Brennstoff, © Atelier M Architekten
Hof, © Atelier M Architekten / Foto: Sabrina Scheja
Brandzelle, © Atelier M Architekten / Foto: Sabrina Scheja
Obergeschoss, © Atelier M Architekten
Gasse, © Atelier M Architekten / Foto: Sabrina Scheja
web Atelier M Architekten GmbH: http://www.am-arch.ch/
Züri WC am Stadthausquai
Michael Meier und Marius Hug Architekten AG
web Michael Meier und Marius Hug Architekten:
http://www.meierhug.ch/
Neubau Parkhaus P1 am Flughafen Hamburg
Riegler Riewe Architekten ZT-Ges.m.b.H.
Photography: Ute Zscharnt
web RieglerRiewe: http://www.rieglerriewe.co.at/
Education Buildings
Award
Neubau Fritz Lippmann Institut
Archiscape - Architekten und Landschaftsarchitekten
Fuente: competitionline
© Archimage | Meike Hansen
ERWEITERUNG GRUNDSCHULE UNTERFÖHRING
BAYER & STROBEL ARCHITEKTEN BDA
Fotos: Peter Strobel
web BAYER & STROBEL ARCHITEKTEN: http://www.bayerundstrobel.de/
Secondary and professional school, theatre
Graeme Mann & Patricia Capua Mann, architectes dipl.
web Graeme Mann & Patricia Capua Mann: http://www.mcm-arch.ch/
landesjugendheim hollabrunn
franz zt gmbh
web franz: http://franz-architekten.at/start.html
DOMUS TECHNICA
iotti+pavarani architetti
web IOTTI+PAVARANIARCHITETTI: http://www.iotti-pavarani.com/
UNIVERSITÄT ULM HELMHOLTZ-INSTITUT
Nickl & Partner Architekten AG
web Nickl & Partner: http://www.nickl-partner.com/
Public Buildings
Gold Award
Cultural and Sports Center Saint Blaise area
BRUTHER
Photography: Copyright © Filip Dujardin
web BRUTHER: http://bruther.biz/Musée d‘ethnographie de Genève
Graber Pulver Architekten AG
web GRABER PULVER: http://graberpulver.ch/
Award
SPS - Salle polyvalente à Sâles (Gruyère)
AC Architectes, Alexandre Clerc architectes SIA
Hallenbad City Zürich
Ernst Niklaus Fausch Architekten
web enf: http://enf.ch/
Gemeindehaus Chavannes-des-bois
Esposito & Javet architectes epfl-sia
web e+j: http://www.esposito-javet.ch/
Thun Panorama
Niklaus Graber & Christoph Steiger Architekten ETH/BSA/SIA
web GRABERUNDSTEIGER: http://www.graberundsteiger.ch/
Zentrum für zeitgenössische Kunst, C4, Córdoba, Spanien
Nieto Sobejano Arquitectos
Fuente: Metalocus
Kulturhaus Kals am Großglockner
Schneider & Lengauer ZT GmbH
web SCHNEIDER & LENGAUER ARCHITEKTEN:
http://www.schneider-lengauer.at/
House of Switzerland
spillmann echsle architekten ag
web spillmann echsle architekten:
http://www.spillmannechsle.ch/wp/?cat=1
Sportzentrum Eselriet, Effretiko
weberbrunner architekten ag
web weberbrunner architekten: http://www.weberbrunner.ch/
Interior Work
Award
The Flushing Meadows Hotel & Bar
Arnold / Werner Partnerschaftsgesellschaft für Architekten
web ARNOLD / WERNER: http://arnold-werner.com/
Apartamento em Braga
CORREIA/RAGAZZI ARQUITECTOS
Fotografía: © Luís Ferreira Alves
web CORREIA/RAGAZZI ARQUITECTOS: http://www.correiaragazzi.com/
Umbau Bauernhaus Adliswil
Felippi Wyssen Architekten
Photos: Walter Mair
web FELIPPI WYSSEN: http://felippiwyssen.ch/
HQ ÖBB
INNOCAD Architecture
Fuente: designboom
web INNOCAD: http://innocad.at/
Inthewhiteroom
KREN Architektur AG
web KREN ARCHITEKTUR AG: http://www.kren.ch/
+info:
BEST ARCHITECTS













































































































































































































































































































































































































































































































































































































































































































































































































































































































































































































































































































































































































































































































































































































































































































No hay comentarios:
Publicar un comentario
Para poder comentar es necesario que cuentes con una cuenta Google, ya que esto implica que de antemano has aceptado la gestión de tus datos personales por parte de Google LLC, propietario de Blogger. En este caso, el envío del comentario es una aceptación explícita e inequívoca de la gestión tanto de tus datos como del comentario mismo para uso de AIB Architecture. La finalidad de la recogida de los datos, además de permitir mostrar tu comentario, es para poder responderte por este medio. Consulta más información en Aviso Legal y Política de Privacidad.